• Vente
€495,000
Référence: R5310997

Parcelle, Riviera del Sol

  • Chambres

    4
  • Salle de bain

    6
  • Surface habitable

    435m²
  • Superficie terrain

    502m²
  • Surface Terasse

    100m²

Description

Un terrain exceptionnel offrant une vue panoramique sur la mer est à vendre à Riviera del Sol (Mijas), l'un des quartiers résidentiels les plus prisés de la Costa del Sol.

Le terrain bénéficie d'un permis de construire valide et d'un plan pour une villa de luxe, permettant un démarrage immédiat des travaux et évitant les longs délais administratifs habituels dans ce secteur (l'obtention du permis a pris près de trois ans).

Ce terrain jouit d'une situation privilégiée, étant l'un des derniers à offrir une vue mer dégagée, garantie par les espaces verts environnants qui empêchent toute construction future de l'obstruer.

Stratégiquement situé à proximité de la sortie 200 de l'autoroute AP-7, il offre d'excellentes liaisons entre Marbella et Fuengirola et se trouve à quelques minutes seulement des plages, des golfs, des écoles internationales, des commerces et des services.

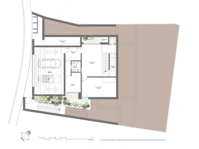
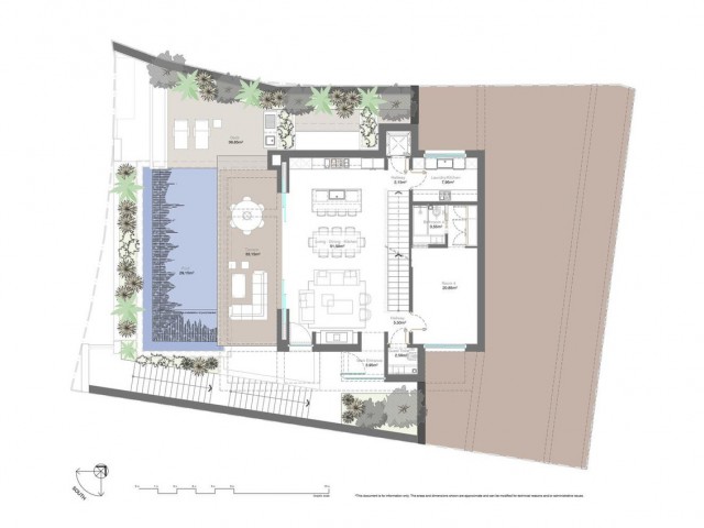
Le projet comprend la construction d'une villa contemporaine haut de gamme, conçue pour une intimité maximale, orientée sud-ouest et offrant une vue imprenable. Elle comprend des espaces intérieurs et extérieurs spacieux, une piscine, des terrasses et des espaces de détente.

Idéal pour les promoteurs, les acheteurs de biens immobiliers de luxe ou les investisseurs à la recherche d'une propriété unique à fort potentiel dans un quartier bien établi.

Profil

Détails

Profil

Orientation:
  • Sud-ouest
Vues:
  • Urbaine
  • Jardin
  • Panoramique
  • Campagne
  • Montagne
  • Mer
Catégorie:
  • De luxe
Régulateur de température:
  • Chauffage central
  • Climatisation
Parking:
  • Plusieurs
Sécurité:
  • Système d’alarme
Piscine:
  • Privée
Cuisine:
  • Cuisine-séjour
Etat:
  • Excellent
Caractéristiques:
  • Salle de bains attenante
  • Buanderie
  • Débarras
  • Salle de jeux
  • Terrasse privée
  • Transports à proximité
Situation:
  • Ecoles à proximité
  • Ville à proximité
  • Mer à proximité
  • Magasins à proximité
  • Golf à proximité
Property Finder

Lieu

  • Localité
  • Riviera del Sol
  • Province
  • Málaga

Détails

Profil

Orientation:
  • Sud-ouest
Vues:
  • Urbaine
  • Jardin
  • Panoramique
  • Campagne
  • Montagne
  • Mer
Catégorie:
  • De luxe
Régulateur de température:
  • Chauffage central
  • Climatisation
Parking:
  • Plusieurs
Sécurité:
  • Système d’alarme
Piscine:
  • Privée
Cuisine:
  • Cuisine-séjour
Etat:
  • Excellent
Caractéristiques:
  • Salle de bains attenante
  • Buanderie
  • Débarras
  • Salle de jeux
  • Terrasse privée
  • Transports à proximité
Situation:
  • Ecoles à proximité
  • Ville à proximité
  • Mer à proximité
  • Magasins à proximité
  • Golf à proximité

Découvrez aussi ...