• Salg
€1,790,000
Referanse: R5142733

Villa, Atalaya

  • Soveroms

    4
  • Baderom

    4
  • Eiendommens størrelse

    300m²
  • Tomtens størrelse

    471m²
  • Terrasse størelse

    50m²

Beskrivelse

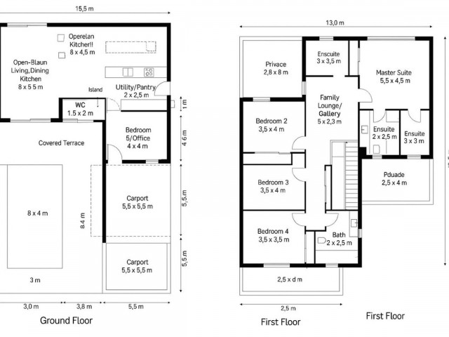
Off-Plan Modern Golf Villa – El Campanario

Seize the chance to own a brand-new frontline golf villa with direct views over El Campanario's fairways. This off-plan contemporary residence combines minimalist architecture with warm natural details and boho-tropical interiors, designed for effortless Mediterranean living.

Enjoy approx. 471 m² plot / 280–320 m² built, featuring:
- 4–5 bedrooms, all ensuite (master with private terrace)
- Spacious open-plan living & dining (8×6 m) with floor-to-ceiling glass
- Designer kitchen with island & outdoor BBQ/dining connection
- Modern flat-roof design, glass balustrades, stone & wood accents

An exclusive opportunity to personalize your future home before construction – blending modern design, comfort, and golf-front luxury.

Spesifikasjoner

Spesifikasjoner

Spesifikasjoner

Orientering:
  • Øst
  • Sør
  • Sør Øst
Kategori:
  • Investering
  • Med planlegging tillatelse
  • Utenom plan
Utsikt:
  • Hage
  • Panorama
  • Golf
  • Basseng
Redskap:
  • Drikkevann
  • Elektrisitet
Parkering:
  • Dekket
  • Garasje
Klimakontroll:
  • Klimaanlegg
Basseng:
  • Privat
Møbler:
  • Valgfritt
Tilstand:
  • Utmerket
Egenskaper:
  • Doble vinduer
  • Grill
  • Eget bad
  • Teknisk rom
  • Bod
  • Satellitt-TV
  • Private terrasse
  • Innebyggede garderober
  • Dekket terrasse
Innstilling:
  • Nær byen
  • Nær butikker
  • Nær havnen
  • Nær golf
  • Mot golfbane
Property Finder

Beliggenhet

  • Område
  • Atalaya
  • Provins
  • Málaga

Spesifikasjoner

Spesifikasjoner

Orientering:
  • Øst
  • Sør
  • Sør Øst
Kategori:
  • Investering
  • Med planlegging tillatelse
  • Utenom plan
Utsikt:
  • Hage
  • Panorama
  • Golf
  • Basseng
Redskap:
  • Drikkevann
  • Elektrisitet
Parkering:
  • Dekket
  • Garasje
Klimakontroll:
  • Klimaanlegg
Basseng:
  • Privat
Møbler:
  • Valgfritt
Tilstand:
  • Utmerket
Egenskaper:
  • Doble vinduer
  • Grill
  • Eget bad
  • Teknisk rom
  • Bod
  • Satellitt-TV
  • Private terrasse
  • Innebyggede garderober
  • Dekket terrasse
Innstilling:
  • Nær byen
  • Nær butikker
  • Nær havnen
  • Nær golf
  • Mot golfbane

Lignende eiendommer som kan interessere deg ...