• Sale
€529,000
Reference: R5155867

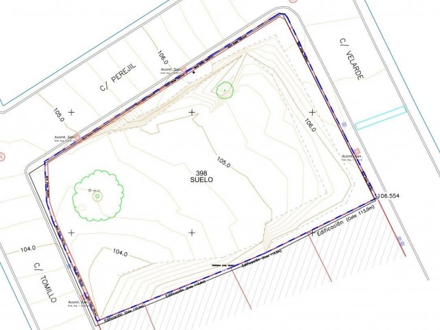
Plot, Benalmadena

  • Plot size

    398m²

Description

Great investment opportunity in the very center of Arroyo de la Miel, Benalmádena. This urban plot of 398 m² is located in a prime area, surrounded by all services, just a few minutes from the beach and with excellent transport connections.

The plot already has a basic project completed and ready to be submitted to the Town Hall, which significantly speeds up the paperwork and saves both time and costs at the beginning of the construction process.

Key investment highlights:

Premium location: established residential area with schools, supermarkets, public transport, and a wide range of leisure and dining options.

Advanced project: streamlines the process of obtaining a building permit.

High profitability: potential to build 12 homes with an approximate constructed area of 2,208.89 m².

Variety of layouts: apartments with 1, 2 and 3 bedrooms, including exclusive duplex penthouses.

Highly demanded extras: 16 parking spaces and 16 storage rooms, adding extra value to the development.

Planned distribution:
1 apartment with 1 bedroom.
7 apartments with 2 bedrooms.
4 duplex penthouses with 3 bedrooms.
16 parking spaces.
16 storage rooms.

An outstanding real estate proposal with great potential in one of the most dynamic and sought-after areas of the Costa del Sol. Investing in this plot means betting on a secure project with excellent profitability and all the guarantees for success.

Our agency fees are already included in the sale price, so you will not have to pay any management or real estate advisory costs.
In compliance with Decree 218/2005 of the Andalusian Regional Government of October 11, we inform you that notary, registry, transfer tax (ITP), and other expenses related to the purchase are not included in the price.
The information provided is for guidance only, not binding, and has no contractual value. The offer is subject to errors, price changes, availability, and/or withdrawal from the market without prior notice. This information may have been modified but not yet updated. We recommend contacting the agency to obtain the most recent details and/or confirm the information provided here.
Property Finder

Location

  • Town
  • Benalmadena
  • Province
  • Málaga

You may also like