• Vente
€1,300,000
Référence: R3501808

Parcelle, El Rosario

  • Superficie terrain

    2400m²

Description

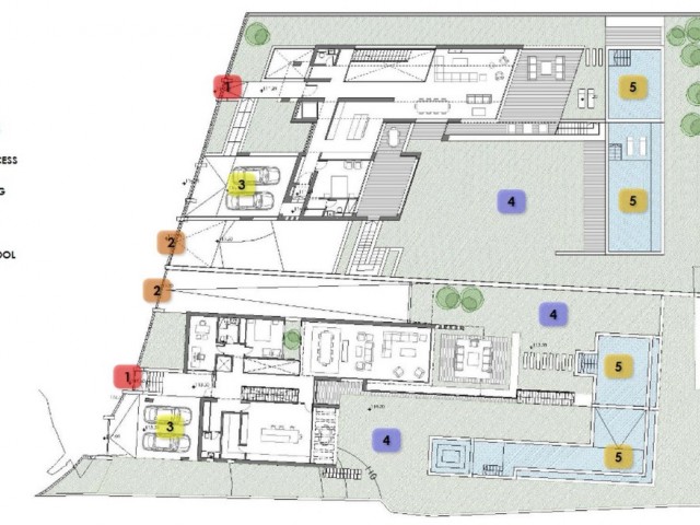
SEA VIEW DEVELOPMENT OPPORTUNITY! Two adjoining development plots of 1200m2 each with panoramic sea views. Full project included with architects plans and planning permission approved to build two contemporary sea view villas (estimated resale value of €2.9M each based upon high spec finish). A prime site for development of 2 new sea view villas in El Rosario.

Profil

Détails

Profil

Orientation:
  • Sud
  • Sud-est
Catégorie:
  • Contemporain
  • Avec Permis de Construire
  • Investissement
Vues:
  • Panoramique
  • Mer
Situation:
  • Urbanisation
  • Ecoles à proximité
  • Mer à proximité
  • Magasins à proximité
  • Golf à proximité
Property Finder

Lieu

  • Localité
  • El Rosario
  • Province
  • Málaga

Détails

Profil

Orientation:
  • Sud
  • Sud-est
Catégorie:
  • Contemporain
  • Avec Permis de Construire
  • Investissement
Vues:
  • Panoramique
  • Mer
Situation:
  • Urbanisation
  • Ecoles à proximité
  • Mer à proximité
  • Magasins à proximité
  • Golf à proximité

Découvrez aussi ...